Оборудование для выгула собак для дворов и общественных пространств
Оборудование для выгула собак необходимо для создания удобных и безопасных площадок на территориях жилых комплексов, парков, скверов, общественных пространств и дворов. Такие решения помогают организовать отдельные зоны для прогулок и активности домашних животных, повышая комфорт жителей и улучшая структуру благоустройства.
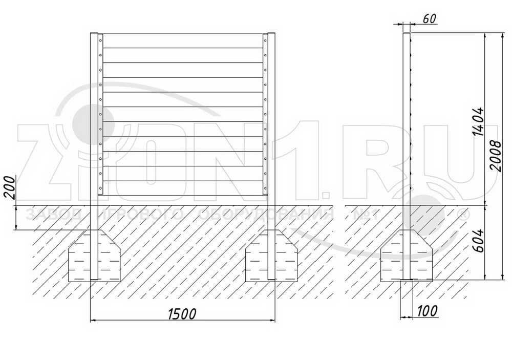
При выборе оборудования для выгула собак важно учитывать размеры площадки, предполагаемую нагрузку, безопасность конструкций, устойчивость к погодным условиям и удобство обслуживания. Грамотно оборудованная площадка помогает создать удобную среду для владельцев собак и поддерживать порядок на территории.
Купить оборудование для выгула собак стоит для современных проектов благоустройства, ориентированных на комфорт жителей, функциональность дворовой среды и развитие инфраструктуры общественных пространств.
